重庆礼嘉智慧公园创新中心西区国际竞赛公布,栖城设计的“垂直帯谱,叠合城市”赢得第一

浏览人数 : 9696 发布时间 : 2020.12.31

1.png


重庆礼嘉智慧公园创新中心西区建筑设计方案国际竞赛结果于近日揭晓,栖城设计“垂直带谱,叠合城市”以专业评分第一赢得竞赛。


本次国际竞赛汇集十家国内外一线设计机构,栖城设计最后赢得A06-6、A06-7、A07-3、A07-6标段,总建筑面积为93万平米,定位以智慧科研、企业孵化、产研展示为功能主体,是礼嘉智慧产业发展的重要节点。


重庆两江新区是继浦东新区、天津滨海新区后,第三个国家级开发开放新区,智慧公园创新中心是重庆创新驱动发展战略的重要工程,2020年8月,礼嘉智慧公园创新中心西区三个标段向全球征集设计方案。


1611544288603668.jpg

1611544536503873.jpg




我们能为城市做什么?

草木丛生,溪流清澈,

质朴而惬意的烟火气,

热情而高效的工作创业

…… 

万物生长,智慧互联,

我们正在创造这样一个叠合环境。



“垂直带谱”是重庆山城的生态特征,也是这座城市独有空间DNA。栖城设计提出以“垂直带谱,叠合城市”为理念,将野生地表(自然),烟火社区(人),智慧山谷(产业)有机叠合,为城市塑造新生。




1611544590853495.jpg1611544590697647.jpg



缝合连接,生成大生态基
恢复野生地表,导入生物通道

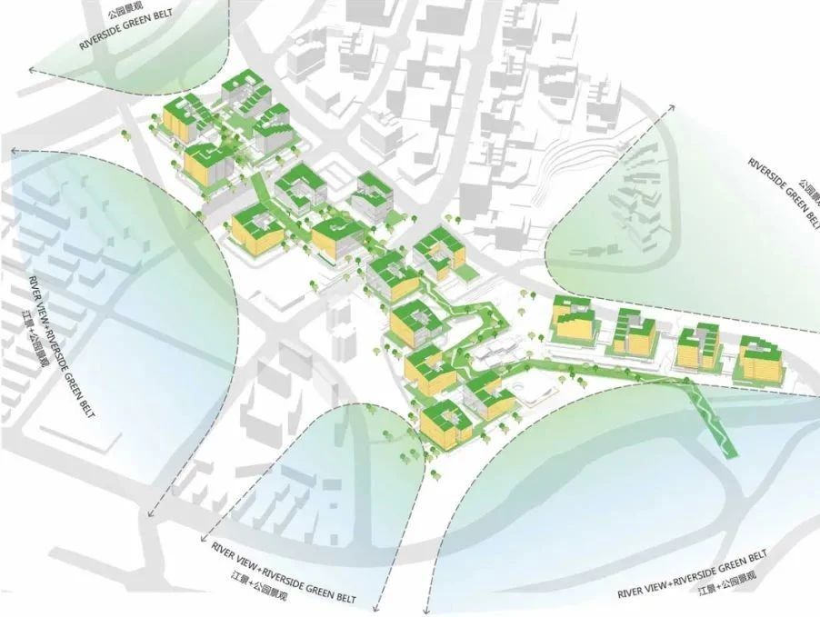
我们计划引入一条生态绿廊,将城市片区功能和被路网分割的生态孤岛重新缝合为整体;并引导城市绿地向内渗透至腹地,让各个组团生长于绿廊和公园周边,连接成整体的开放公园。

我们意识到此地区原有的良好生态,因此保留的大部分的地形起伏上,恢复和重塑本地原生环境,并通过绿廊连接了近千亩无阻隔的生物活动区,可达江岸生态区。


1611544642355674.gif





18个60×60山谷建筑群
立体花园交织


出于效率和对山地地形的合理利用的目标,我们控制楼栋数量,简化内部交通组织,尽可能降低对场地的改造,在此基础上生成了18个开放山谷形态的建筑体,之间以烟火社区平台横向连接。每个建筑体从地面 → 绿廊 → 中庭 → 退台 → 屋顶,形成纵横交织的立体花园系统。


1611544693819945.gif




单体从模块化上产生多样性

植入可生长空间

建筑从60×60体量的标准模块,进化出统一而多样性的形体语言,以线条为主元素,退台花园和裙楼平台,架空空间为主空间要素,确保了园区的风貌统一,组团具有个性特征,项目中设计了近3000㎡的U型大平层空间用以应对孵化企业扩展和可变的使用效率,而且采光通风,人员协作,社交等都能获得优势提升,亦适应不同产业导入和发展需求。

1611544732360734.jpg1611544732790199.jpg





建构在山地立体系统上的交通
纳入城市步行系统,构建大产业公园


我们利用山地与城市道路的高差,设置多层次的区内交通和停车,并结合各地块标高,以空中步行体系将各个地块连成整体,纳入到开放的城市步行系统,进一步强化重庆立体城市的DNA,构建区域大产业公园基底。


1611544793608593.jpg

1611544793719615.jpg



我们建立起18座群峰起伏的产业山丘,一个野生地表、烟火社区智慧山谷的叠合城市,关注自然生态,烟火文化,人,企业成长,产业发展,城市进化的的有机体,为城市注入新生机能,这会是我们在重庆一系列设计的美好开始。

新年将至,顺颂台安!




关于栖城

——

GN栖城设计在中国深耕17年

一直致力于专业纵深,产品思维和艺术性的融合

创作优秀设计作品

在高端住区、产业办公、商业、景观领域业绩卓越

在康养地产领域尤其突出

提供从定位,设计到运营指导的全链服务

以专业和系统的解决方案创造价值


12.jpg