栖城新作 | 未来之屋设计竞赛获奖作品将在阿联酋全境落地

浏览人数 : 739 发布时间 : 2025.11.18

阿联酋“2024/2025 未来之屋House of the Future”设计竞赛于近日公布最终获奖名单,本次大赛共有来自世界各地的122个国家、400+团队参赛,是截至目前2025年全球参与国家最多的建筑设计竞赛。GN栖城设计作品获得本次竞赛全球TOP3,同时也是该竞赛历史上首次获奖的中国团队。

竞赛由阿联酋谢赫·扎耶德住房计划署与穆罕默德·本·拉希德政府创新中心共同主办,栖城创作的优胜方案FlexiCourts被纳入阿联酋国家住房设计目录UAE's national catalogue of housing designs ),将在阿联酋全境落地实施

1.jpg
△ GN栖城设计获奖作品Flexi Courts

作为阿联酋公民住房建筑清单的一部分,FlexiCourts设计方案提供了一种基于庭院的居住原型,为本地的4至6口之家打造一座2至3层的家庭住宅,地块面积为450平方米(15米×30米),预算控制在80万迪拉姆。

设计充分考虑到阿联酋(UAE)独特的沙漠气候和文化背景,区域空间传统与被动式气候策略相结合,专为阿联酋密集的城市生活而设计。同时聚焦于极端气候环境下的绿色居住实践,结合地域文化与现代生活方式,探索住宅空间的弹性、适应力和可持续性,回应阿联酋社会结构、气候挑战与未来人居愿景。



| 灵活的空间布局:双庭院与多功能融合

FlexiCourts的设计灵感来源于阿拉伯传统庭院体系,采用双庭院布局:前庭强调仪式性和正式感,后庭则服务于日常家庭生活。

2.jpg
△ 鸟瞰效果图

整个住宅占地紧凑,却通过可开合的隔断、多重天井、抬高的户外平台和可折叠格栅,实现了流动的家庭环境。前后花园、客厅、餐厅和Majlis(传统会客厅)可连通成330平方米的社交空间,轻松切换日常居住与大型聚会模式。

整个居所设计通过六层空间序列,即从入口大门、前庭到后花园,营造出从公共到私密的渐进式流通路径和仪式感体验,同时尊重当地好客习俗,将Majlis置于入口附近,与家庭区清晰分离。支持多代同堂居住和适应性使用。在紧凑的空间内平衡公共区域和私人区域,同时兼顾环境韧性和社会规范。

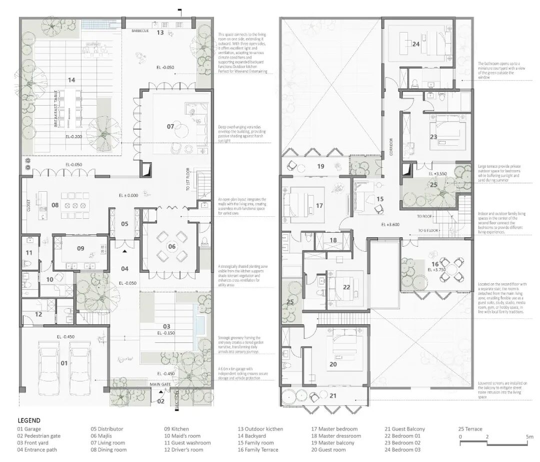
3.jpg
△ 平面图

1F地面层社交和服务区为主,包括Majlis、客厅、餐厅、厨房、女仆房、司机房和户外厨房。深悬挑阳台环绕建筑,提供被动遮阳;遮阴种植区从厨房可见,促进交叉通风;6.6m x 6m的车库独立上锁,确保安全存储。户外厨房专为周末娱乐设计,配备烧烤区和早餐桌。

2F为私密生活区,包括主卧、客房、卧室和多功能室。浴室连接小型庭院,窗外绿意盎然;大型露台为卧室提供私密户外空间,缓冲阳光和沙尘;中心家庭客厅连接各卧室,提供多样生活体验。多功能室通过独立楼梯接入,可灵活用作客房、书房、工作室、媒体室、健身房或爱好空间,符合当地家庭传统。

1-(5).jpg
△ 客厅效果图

双庭院与天井系统是FlexiCourts方案里的一大亮点。简洁的Z字形平面布局提供了两个庭院,一个公共庭院一个私密庭院。64㎡的前庭营造仪式性抵达感,145㎡的后庭则被扩展为家庭生活庭院,配备绿化、长桌、秋千和烧烤站,促进家庭互动。小型天井为各功能室带来自然光和通风,减少对人工照明和空调的依赖。

这种空间灵活性体现在“正常模式”与“派对模式”的切换:日常时Majlis独立运作;聚会时打开隔断,将前后庭院与室内连成一体,满足从家庭日常到大型接待的需求。同时,双重流通路径确保访客无需穿越家庭区,即可在地面层完成社交活动,兼顾仪式性和私密性。

5.jpg

6.jpg
△ 庭院效果图



| 可持续策略:本土材料与被动冷却技术

在阿联酋独特的沙漠气候,FlexiCourts方案强调环保可持续性,利用本地资源和传统技术应对UAE的高温、干燥和沙尘挑战。

建筑外壳采用本地AAC(蒸压加气混凝土)块,轻质、隔热、耐候,结合光伏屋顶、模块化绿化、中央风塔和可折叠格栅,形成低碳被动气候策略。

7.jpg

  • AAC混凝土块:由沙、石灰、石膏等天然材料制成,生产能耗低、可回收。本地大规模生产,成本低;优异隔热性能减少空调能耗;轻质结构提高施工效率;耐高温、耐腐蚀,适合沿海盐碱环境。

  • 光伏屋顶:屋顶80平方米单晶光伏板,年发电量约24,000-30,000千瓦时,满足基本用电需求,支持UAE2050净零碳排放”目标。同时降低热岛效应,建筑表面温度降5-8°C,空调能耗减15-20%

  • 风塔系统:传承阿拉伯传统,中央风塔结合水冷系统和空调,促进烟囱效应加速空气循环,过滤沙尘,实现自然通风冷却。

  • 种植屋顶:采用模块化系统、节水灌溉和多层种植,选择耐旱耐热植物如景天属、阿拉伯薰衣草、迷迭香等。植物覆盖反射30%太阳辐射,吸收40%红外线,屋顶热负荷减80%;滴灌系统结合雨水回收,实现75%雨水再利用;每年每平方米固碳5.4kg,降碳强度10-15%;提升生物多样性,吸引传粉昆虫,形成空中生态走廊。

  • 可折叠格栅单元:借鉴传统Mashrabiya图案,平衡遮阳、通风、采光和隐私需求,提升阳台和露台的实用性,同时呼应伊斯兰建筑美学。


8.jpg


此外,设计还通过小型庭院和露台促进对流空气流动,降低室内温度;地下水池泵送凉水,进一步增强冷却效果。这些措施显著减少能源消耗,提升居住舒适度。



| 文化敏感与生活舒适的完美平衡

作为由阿联酋谢赫·扎耶德住房计划署与穆罕默德·本·拉希德政府创新中心共同策划并组建的阿联酋公民住房建筑清单(the UAE's national catalogue of housing designs)的一部分,未来之屋的初衷是要求来自全球的设计师基于450平方米地块设计可扩展、经济适用且气候响应的原型住宅,要求空间布局明晰性、紧凑规划策略以及适应阿联酋社会文化与气候环境的可持续建筑系统,优胜方案将供整个阿联酋范围内的居民选择并申请建造。

针对以上基础,FlexiCourts方案根植于UAE文化遗产,以可持续生活为核心,巧妙地将当地文化传统与当代生活方式相结合,打造出适应性强、环保舒适的居住空间。

9.jpg
△ 室外是庭院,室内是Majlis

譬如,将Majlis布置在靠近入口和客用卫生间的位置,尊重伊斯兰好客习俗;设计了司机房和双车库,适应当地常见的生活需求;侧院直通厨房和后院,确保家庭隐私。设计在紧凑地块内营造花园般氛围,提供从喧闹到宁静的情感之旅,满足现代城市生活需求。

10.jpg
△ 主入口效果图

FlexiCourts方案以文化敏感性、生活舒适度和环境可持续性为核心,直接回应UAE的社会结构、气候挑战和未来居住愿景。作为一项高度适应性和可行性的提案,FlexiCourts不仅提升居民生活质量,还为可持续建筑树立典范,助力地区绿色转型。






联系我们 Contact us

- 业务 -

projects@gnarchitects.cn

 13166198231 杨小姐

- 媒体 -

press@gnarchitects.cn

13127665199 江小姐

- 招聘 -

hr@gnarchitects.cn

官网招聘主页


关注我们 Follow us

网站: www.gnarchitects.cn

微博:栖城设计

小红书:GN栖城设计

instagram:@gnarchitects_official