2. 服务性建筑群向城市开放,核心功能私密,完美平衡城市与居家之间的相互关系;
3. 在上海市场严峻的竞争形势下,主动聚焦60后养老人群的需求特点,并承接外来人员的使用,实现空间多元、参与性强、成长性高的第三代养老社区。

01
市场竞争形势和土地价值认知
上海市场竞争背景
区位板块的优劣势

上海主要项目信息汇总 © 栖城GLAB
项目基地相较周边奉城、大团、四团板块,到达主城区域交通便利,邻近浦东新区发展迅速板块。但缺乏优势产业,整体发展水平较弱,5公里内缺乏住宅所需配套和商业所需人流支持。对照住宅市场,市区客户对本地块的价值认知为住宅单价2.5-3万/平米。如只考虑50年使用权,价值认知约在同等住宅价格65%,约1.7万/平米。

02
用地规划和运营策略
对内共享、对外开放
分期销售、分组运营
综合上海市场竞争背景和区位板块优劣势分析,栖城认为实现项目土地价值提升的突围重点在于聚焦解决:
1. 如何实现文化地块“对内共享、对外开放”,最大化空间运营价值;
2. 如何实现医疗地块建筑“看不见、享得到”,对养老住区提供充分支持;
3. 如何“分期销售、分组团运营”,缓解规模带来的销售压力。
具体规划策略有:
1. 开放腹地,最大化文化用地价值,打造社群聚落空间——小镇中心,并以Mall的方式来设计;
2. 采用组团运营策略,减少项目规模带来的运营风险;
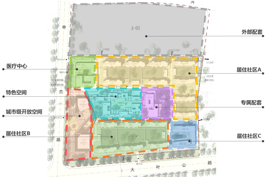
3. 医疗地块独立配置,消除不积极运营因素;将康复医院与护理单元、政府保基本养老床位在一个单体集约配置。



组团运营策略及独立医疗版块 © 栖城设计

配套规划 © 栖城设计

开放、多元
发展、参与
依据栖城对现代养老社区发展趋势和用户需求变化的思考,项目被定位为“回归60后养老人群需求原点的第三代养老社区”,“开放、多元、发展、参与”的故事线贯穿整个项目。
1)运营故事线
地域特征、生活方式、价值观、文化属性等差异带来客户的多元化,养老项目的客户需求也在时代变迁中增长进化。但一直以来,养老社区营造困囿于设计法规严厉、创新空间狭隘,无法回归老人的需求原点,以多元化、包容性的生活场景回馈给客户。
此次策划便试图突破这些陈规框架,从运营视角出发,保留贯穿全项目的故事线——开放、多元、发展、参与。使之与传统封闭型、保障型的养老社区形成差异化,让开放式的社区链接老人与社会的融合,尽可能为老人提供丰富生活方式的配套、更有参与感的社区文化和可持续发展的服务内容。
产品策略具体可以表现在,从“社会性延续、参与感社区、全周期服务和可持续运营”四个维度出发,融合“Studio、独立生活社区、辅助照料社区和护理院”四个细分产品。让客户在社区感受到丰富的代际沟通、可变化的服务与空间,收获精神健康和自我实现。

多元社群文化聚落
空间功能自主定义
为实现空间多元性、契合60后老人的社交习惯,设计采用“聚落化”策略。“多元的社群文化聚落”的营造演变于中国传统的聚落形式,是此次设计思考的突破点:
1. 以“聚落化”的生活场景想象构筑“聚落化”的空间;
2. 以“自然聚落”的形态关注社区与自然的有机边界和丰富的空间层级;
3. 以“立体聚落”的方式尝试通过公共空间“竖向叠加”来打破楼层局限;
4. 以“局部到整体”的设计技巧探索聚落的自然生长状态。

小镇中心作为社区的特色配套和聚落空间的集中体现,主要为客户的“朋友圈”“家庭圈”提供社交、聚会空间,前期可以作为示范区及接待客厅使用。主要涵盖一些“前街后坊”的空间,如国学馆、智慧坊、亲子坊、手工坊、书画坊、音乐坊等学习休闲场所。它们聚成几个组团,每个都有向外的展示面和出入口;同时,拥有面向内院的工作生活区。在设想中,老人们可以选择租赁其中的一些工作室“对外营业”,从而“复活”他们的专业技能和兴趣爱好。


客户价值服务提供
文娱空间、健康中心
食养照护、匠心产品
因为在策划中最大化利用项目混合用地的属性,营造出了多个社群和功能空间,得以为客户提供以下四大模块的价值服务:
▷ 动静皆宜的文娱空间——拥有约9300㎡的文体中心,配备室内恒温游泳池、羽毛球馆、乒乓房等体育场馆, 多功能剧场、图书馆等文化场所,愉悦身心,丰富生活。

▷ 多样亲情空间——亲子坊、下沉式广场等多样场景让居者与家人共叙天伦之乐。

▷ 风雨连廊全覆盖——全社区建筑均设有风雨连廊相连,与景观相容,供居住者风雨无阻、往来自如。




康复医院&体检中心 © 栖城设计

总结
东上海·怡福荟作为上海首个城市更新混合用地,其发展策略对未来居住客户甚至用地周边发展都将产生巨大影响。但养老社区基于未来需求如何重新定义退休生活、如何实现不同业态的协同和内外循环、如何生存和持续经营……不仅仅需要策划和设计团队的支撑,更需要经营者和客户一同参与寻找答案。
